

























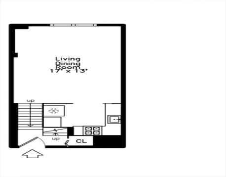
Welcome to Parris Landing, a full-service, pet friendly residential development with 24 concierge and elevator. This duplex unit features hardwood floors throughout and an updated kitchen with newer appliances & gas cooking. Sunny, southeast facing windows, central A/C, exposed brick walls and loads of closet space! Upstairs, a spacious bedroom with lots of closet space and full bathroom. One valet garage parking space also included! Amenities of Parris Landing on-site Property Management, large fitness center, courtyards, a swimming pool, a community/game room & business center. Boston’s historic Navy Yard offers many commuter options via 93 on/off ramps or the MBTA Harbor Ferry to the North End and Waterfront with quick access to South Station, Commuter Rail and Logan Airport. Taxes do not reflect residential exemption.
| MLS Listing ID: | 73446600 |
|---|---|
| Listing Price: | $555,000 |
| Listing Status: | Active [?] |
| Neighborhood: | Charlestown |
| Property Type: | Condo |
| Style: | Mid-rise |
| Rooms: | 4 |
| Bedrooms: | 1 |
| Full Baths: | 1 |
| Living Space: | 707 sf. |
| Lot Size: | - |
| Parking: | Yes |
| Taxes: | $5,422.00 |
| Tax Year: | 2025 |
| Association Fees: | $721.18 |
Listing Current as of November 10, 2025 8:00am
This listing brought to you by Kim Douglas of Coldwell Banker Realty - Boston.
The property listing data and information set forth herein were provided to MLS Property Information Network, Inc. from third party sources, including sellers, lessors and public records, and were compiled by MLS Property Information Network, Inc. The property listing data and information are for the personal, non-commercial use of consumers having a good faith interest in purchasing or leasing listed properties of the type displayed to them and may not be used for any purpose other than to identify prospective properties which such consumers may have a good faith interest in purchasing or leasing. MLS Property Information Network, Inc. and its subscribers disclaim any and all representations and warranties as to the accuracy of the property listing data and information set forth herein.
A&S Realty, Inc and their agents make no warranties or representations as to the accuracy of this data, although good faith efforts have been made to ensure that the data displayed on this page is as accurate as possible. In certain cases listings are syndicated through another agency, management company, or through the MLS. A&S Realty, Inc is not responsible for the data that is displayed from a syndicate partner. Listings may no longer be available, pricing may be subject to change, and any photos or descriptions may be of a similar unit or from a previous year.