































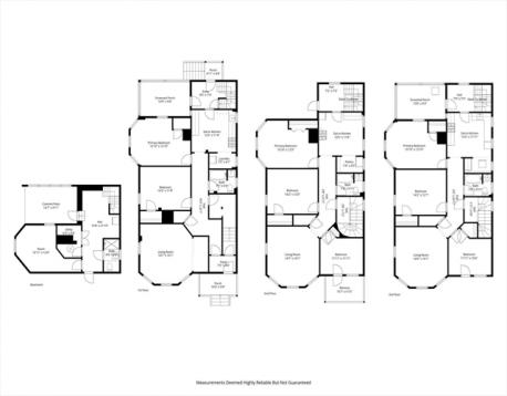
Multi-Family Investment Opportunity – Boston, MA. Rare opportunity for investors or owner-occupants! This three-family property offers strong income potential and flexibility. Unit 1: 2 bedrooms – vacant, Unit 2: 3 bedrooms – occupied, Unit 3: Delivered vacant. Additional features include a finished basement, providing extra living or storage space. Conveniently located near public transportation, major highways (I-93), shopping, houses of worship, and downtown Boston. Walking distance to parks and local amenities. Property to be SOLD AS IS, Great potential for rental income or condo conversion. Don’t miss out!
Open House: April 18th 10:00-12:00pm
| MLS Listing ID: | 73502577 |
|---|---|
| Listing Price: | $1,150,000 |
| Listing Status: | New [?] |
| Property Type: | Multi Family |
| Bedrooms: | 8 |
| Full Baths: | 3 |
| Living Space: | 4191 sf. |
| Lot Size: | 0.08 acres (3500 sf.) |
| Parking: | Yes |
| Taxes: | $11,607.00 |
| Tax Year: | 2025 |
Listing Current as of April 17, 2026 12:00am
This listing brought to you by Johnson Folorunso of DOSU Realty LLC.
The property listing data and information set forth herein were provided to MLS Property Information Network, Inc. from third party sources, including sellers, lessors and public records, and were compiled by MLS Property Information Network, Inc. The property listing data and information are for the personal, non-commercial use of consumers having a good faith interest in purchasing or leasing listed properties of the type displayed to them and may not be used for any purpose other than to identify prospective properties which such consumers may have a good faith interest in purchasing or leasing. MLS Property Information Network, Inc. and its subscribers disclaim any and all representations and warranties as to the accuracy of the property listing data and information set forth herein.
A&S Realty, Inc and their agents make no warranties or representations as to the accuracy of this data, although good faith efforts have been made to ensure that the data displayed on this page is as accurate as possible. In certain cases listings are syndicated through another agency, management company, or through the MLS. A&S Realty, Inc is not responsible for the data that is displayed from a syndicate partner. Listings may no longer be available, pricing may be subject to change, and any photos or descriptions may be of a similar unit or from a previous year.