


































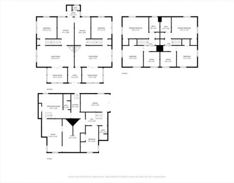
Spacious two-family home in a desirable Oak Square, Brighton location, offering excellent flexibility for both investors and owner-occupants. The property features two identical units, each with 1 bedroom on the first floor, 2 bedrooms and 1 office on the second floor, and an additional bedroom with a full bathroom in the finished basement—providing versatile space for guests, a home office, or extended living.Each unit includes its own full bathroom on the second floor, plus a shared half bath on the first-floor hallway. Unit A is vacant, while Unit B is currently rented for $3,400/month with a lease through the end of August, creating immediate rental income and future occupancy options.Bright, spacious, and well-laid-out, the home is situated on a quiet residential street with convenient access to public transportation, major commuter routes, and the shops and cafés of Oak Square, making it a strong opportunity for both investment and comfortable long-term living.
Open House: April 11th 1:00-3:00pm
| MLS Listing ID: | 73498608 |
|---|---|
| Listing Price: | $1,349,000 |
| Listing Status: | New [?] |
| Property Type: | Multi Family |
| Bedrooms: | 8 |
| Full Baths: | 4 |
| Half Baths: | 1 |
| Living Space: | 3239 sf. |
| Lot Size: | 0.09 acres (4135 sf.) |
| Parking: | Yes |
| Taxes: | $12,206.00 |
| Tax Year: | 2026 |
Listing Current as of April 10, 2026 11:00am
This listing brought to you by Yangyang Zhou of Coldwell Banker Realty - Newton.
The property listing data and information set forth herein were provided to MLS Property Information Network, Inc. from third party sources, including sellers, lessors and public records, and were compiled by MLS Property Information Network, Inc. The property listing data and information are for the personal, non-commercial use of consumers having a good faith interest in purchasing or leasing listed properties of the type displayed to them and may not be used for any purpose other than to identify prospective properties which such consumers may have a good faith interest in purchasing or leasing. MLS Property Information Network, Inc. and its subscribers disclaim any and all representations and warranties as to the accuracy of the property listing data and information set forth herein.
A&S Realty, Inc and their agents make no warranties or representations as to the accuracy of this data, although good faith efforts have been made to ensure that the data displayed on this page is as accurate as possible. In certain cases listings are syndicated through another agency, management company, or through the MLS. A&S Realty, Inc is not responsible for the data that is displayed from a syndicate partner. Listings may no longer be available, pricing may be subject to change, and any photos or descriptions may be of a similar unit or from a previous year.