







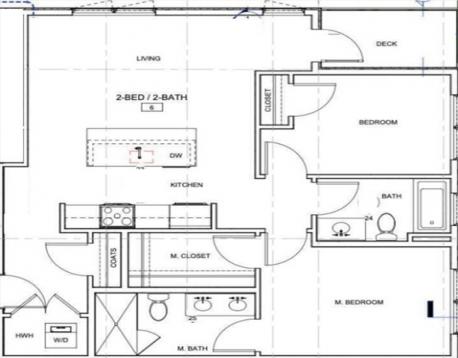
250 Bremen is a boutique luxury development ideally situated near Jeffries Point steps from Maverick Square + across from the beautiful East Boston Greenway! Unit 306 features a well-designed 2-bedroom, 2-bath layout with an open-concept floor plan and oversized windows that fill the home with natural light. The spacious primary suite includes an en suite bath, double vanity + frameless glass shower & walk in closet. Generous second bedroom + full guest bath provide flexibility for guests or additional living needs.Kitchen is centered around an oversized Quartz waterfall island, complemented by custom cabinetry + stainless appliances. Hardwood flooring, recessed lighting, high ceilings and PRIVATE deck! Professionally managed building offers easy access to the Maverick T Station, multiple bus lines, Logan Airport shuttle + major highways including I-90 and I-93. Enjoy close proximity to waterfront parks, scenic walking and bike path. Late Summer completion. TOURS AVAILABLE NOW
| MLS Listing ID: | 73492488 |
|---|---|
| Listing Price: | $799,800 |
| Listing Status: | Active [?] |
| Neighborhood: | East Boston |
| Property Type: | Condo |
| Style: | Mid-rise |
| Rooms: | 5 |
| Bedrooms: | 2 |
| Full Baths: | 2 |
| Living Space: | 1025 sf. |
| Lot Size: | - |
| Parking: | - |
| Taxes: | - |
| Association Fees: | $350.00 |
Listing Current as of May 20, 2026 12:00am
This listing brought to you by Elevated Boston Team of Elevated Realty, LLC.
The property listing data and information set forth herein were provided to MLS Property Information Network, Inc. from third party sources, including sellers, lessors and public records, and were compiled by MLS Property Information Network, Inc. The property listing data and information are for the personal, non-commercial use of consumers having a good faith interest in purchasing or leasing listed properties of the type displayed to them and may not be used for any purpose other than to identify prospective properties which such consumers may have a good faith interest in purchasing or leasing. MLS Property Information Network, Inc. and its subscribers disclaim any and all representations and warranties as to the accuracy of the property listing data and information set forth herein.
A&S Realty, Inc and their agents make no warranties or representations as to the accuracy of this data, although good faith efforts have been made to ensure that the data displayed on this page is as accurate as possible. In certain cases listings are syndicated through another agency, management company, or through the MLS. A&S Realty, Inc is not responsible for the data that is displayed from a syndicate partner. Listings may no longer be available, pricing may be subject to change, and any photos or descriptions may be of a similar unit or from a previous year.