






















Investment | 1031 Exchange opportunity in A+++ location! Completely renovated in 2006 with all hardwood floors, central air for heating/cooling. Both units have laundry in-unit, granite countertop kitchen with stainless steel appliances. 100% occupancy throughout the years. Current lease ends 8/31/26. Off-street parking available in the back parking lot. Unbeatable location, minutes to Harvard Ave MBTA, all cafes, bars, restaurants on Harvard Ave, Brighton Ave. Convenient to students of Boston University, Boston College and surrounding universities. Value-add opportunity to do a 3 unit conversion by dividing unit 1 into two units. Possibility to enclosing the garage and finishing the attic for additional living area. Adjacent property; 16-22 Reedsdale St Allston MA is also for sale and it can be sold as a package.
| MLS Listing ID: | 73478334 |
|---|---|
| Listing Price: | $1,800,000 |
| Listing Status: | Price Changed [?] |
| Neighborhood: | Allston |
| Property Type: | Multi Family |
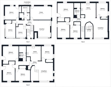
| Bedrooms: | 11 |
| Full Baths: | 3 |
| Half Baths: | 1 |
| Living Space: | 4086 sf. |
| Lot Size: | 0.11 acres (5000 sf.) |
| Parking: | Yes |
| Taxes: | $21,156.92 |
| Tax Year: | 2026 |
Listing Current as of April 07, 2026 12:00am
This listing brought to you by Christie Xie of Nuage Real Estate Group.
The property listing data and information set forth herein were provided to MLS Property Information Network, Inc. from third party sources, including sellers, lessors and public records, and were compiled by MLS Property Information Network, Inc. The property listing data and information are for the personal, non-commercial use of consumers having a good faith interest in purchasing or leasing listed properties of the type displayed to them and may not be used for any purpose other than to identify prospective properties which such consumers may have a good faith interest in purchasing or leasing. MLS Property Information Network, Inc. and its subscribers disclaim any and all representations and warranties as to the accuracy of the property listing data and information set forth herein.
A&S Realty, Inc and their agents make no warranties or representations as to the accuracy of this data, although good faith efforts have been made to ensure that the data displayed on this page is as accurate as possible. In certain cases listings are syndicated through another agency, management company, or through the MLS. A&S Realty, Inc is not responsible for the data that is displayed from a syndicate partner. Listings may no longer be available, pricing may be subject to change, and any photos or descriptions may be of a similar unit or from a previous year.