

















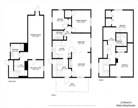
Beautifully renovated four-bedroom, three-bath home near the Newton border in desirable West Roxbury. The main level features a renovated kitchen with stone countertops, stainless steel appliances, and custom cabinetry, opening to a spacious living and dining room with gleaming hardwood floors throughout. Two bedrooms and a fully renovated bath complete this level. Upstairs offers two additional bedrooms and another renovated full bathroom. The finished lower level includes a large bonus room with walkout access to the stone patio and expansive backyard, plus a renovated full bath, laundry area, and generous storage room.Single-car garage suitable for a compact vehicle. Move-in ready and ideally located near shops, parks, schools, and commuter routes.
Open House: March 5th 12:00-1:00pm
| MLS Listing ID: | 73481989 |
|---|---|
| Listing Price: | $799,000 |
| Listing Status: | New [?] |
| Neighborhood: | West Roxbury |
| Property Type: | Single Family |
| Style: | Bungalow |
| Rooms: | 7 |
| Bedrooms: | 4 |
| Full Baths: | 3 |
| Living Space: | 1929 sf. |
| Lot Size: | 0.11 acres (4791 sf.) |
| Parking: | Yes, Off-street |
| Taxes: | $10,087.00 |
| Tax Year: | 2025 |
Listing Current as of March 03, 2026 5:00pm
This listing brought to you by Marika and Adam Real Estate Group of Hammond Residential Real Estate.
The property listing data and information set forth herein were provided to MLS Property Information Network, Inc. from third party sources, including sellers, lessors and public records, and were compiled by MLS Property Information Network, Inc. The property listing data and information are for the personal, non-commercial use of consumers having a good faith interest in purchasing or leasing listed properties of the type displayed to them and may not be used for any purpose other than to identify prospective properties which such consumers may have a good faith interest in purchasing or leasing. MLS Property Information Network, Inc. and its subscribers disclaim any and all representations and warranties as to the accuracy of the property listing data and information set forth herein.
A&S Realty, Inc and their agents make no warranties or representations as to the accuracy of this data, although good faith efforts have been made to ensure that the data displayed on this page is as accurate as possible. In certain cases listings are syndicated through another agency, management company, or through the MLS. A&S Realty, Inc is not responsible for the data that is displayed from a syndicate partner. Listings may no longer be available, pricing may be subject to change, and any photos or descriptions may be of a similar unit or from a previous year.