















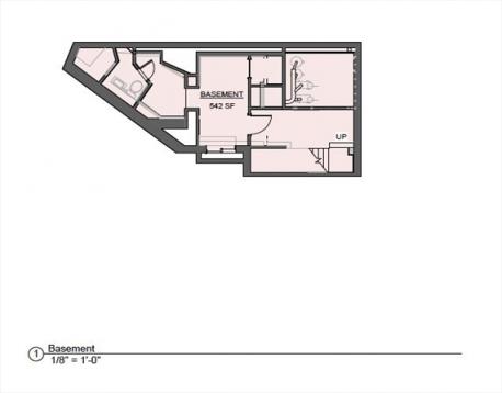
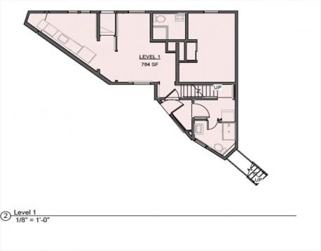
Beautifully maintained two-family home in a prime South Boston location, steps from restaurants, shops, and public transportation. Unit 1 is a spacious garden duplex offering two levels of living with gleaming wood floors, a modern kitchen with white shaker cabinets, granite counters, and SS appliances, and a primary bedroom with excellent closet space and an en-suite bath. The bright garden level features exposed brick, a second bedroom, a full bath, and a laundry room. Both baths offer oversized glass showers with stunning tile work. Unit 2 is a sunny 2 bed/1 bath featuring a modern kitchen with white shaker cabinets, gray granite, SS appliances, hardwood floors, generous bedrooms, and in-unit laundry. New roof installed in 2020. Conveniently located between Broadway and Andrew Stations with a bus stop just steps away. Walking distance to all the best of South Boston. Property will be delivered fully occupied, both leases and 7/2026
Open House: December 7th 11:00-1:00pm
| MLS Listing ID: | 73458644 |
|---|---|
| Listing Price: | $947,000 |
| Listing Status: | New [?] |
| Neighborhood: | South Boston's Dorchester Heights |
| Property Type: | Multi Family |
| Bedrooms: | 4 |
| Full Baths: | 3 |
| Living Space: | 2600 sf. |
| Lot Size: | - |
| Parking: | - |
| Taxes: | - |
Listing Current as of December 04, 2025 5:00pm
This listing brought to you by Vanessa Ray of Paramount Properties.
The property listing data and information set forth herein were provided to MLS Property Information Network, Inc. from third party sources, including sellers, lessors and public records, and were compiled by MLS Property Information Network, Inc. The property listing data and information are for the personal, non-commercial use of consumers having a good faith interest in purchasing or leasing listed properties of the type displayed to them and may not be used for any purpose other than to identify prospective properties which such consumers may have a good faith interest in purchasing or leasing. MLS Property Information Network, Inc. and its subscribers disclaim any and all representations and warranties as to the accuracy of the property listing data and information set forth herein.
A&S Realty, Inc and their agents make no warranties or representations as to the accuracy of this data, although good faith efforts have been made to ensure that the data displayed on this page is as accurate as possible. In certain cases listings are syndicated through another agency, management company, or through the MLS. A&S Realty, Inc is not responsible for the data that is displayed from a syndicate partner. Listings may no longer be available, pricing may be subject to change, and any photos or descriptions may be of a similar unit or from a previous year.