
















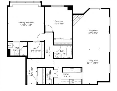
Boutique full-service concierge living at the Prince is defined by its elevated lifestyle offerings, including a stunning rooftop deck w/ panoramic city views & wet bar. A heated deeded parking space located directly beside the building entrance—among the most convenient in Back Bay—sets this residence apart. Inside, this rarely available corner unit features an abundance of windows w/ coveted south & east exposures, flooding the home w/ natural light. The open layout is complemented by a refined kitchen w/ leathered stone countertops & under-cabinet lighting, along w/ a wood-burning fireplace w/ a charcoal granite surround. Bedrooms are notably larger than many standard units in the building, including a well-appointed primary suite w/ a walk-in closet, renovated bath & blackout shades. Positioned on iconic Newbury Street, it offers immediate access to the city’s best dining & shopping. Offered w/ most furnishings, this represents one of the best values at the Prince.
| MLS Listing ID: | 73496896 |
|---|---|
| Listing Price: | $2,375,000 |
| Listing Status: | New [?] |
| Neighborhood: | Back Bay |
| Property Type: | Condo |
| Style: | Mid-rise |
| Rooms: | 5 |
| Bedrooms: | 2 |
| Full Baths: | 2 |
| Living Space: | 1289 sf. |
| Lot Size: | - |
| Parking: | Yes, Assigned, Deeded, Exclusive Parking, Assigned, Deeded, Exclusive Parking |
| Taxes: | $18,353.00 |
| Tax Year: | 2025 |
| Association Fees: | $1517.00 |
Listing Current as of April 10, 2026 11:00am
This listing brought to you by The Lush Group of Compass.
The property listing data and information set forth herein were provided to MLS Property Information Network, Inc. from third party sources, including sellers, lessors and public records, and were compiled by MLS Property Information Network, Inc. The property listing data and information are for the personal, non-commercial use of consumers having a good faith interest in purchasing or leasing listed properties of the type displayed to them and may not be used for any purpose other than to identify prospective properties which such consumers may have a good faith interest in purchasing or leasing. MLS Property Information Network, Inc. and its subscribers disclaim any and all representations and warranties as to the accuracy of the property listing data and information set forth herein.
A&S Realty, Inc and their agents make no warranties or representations as to the accuracy of this data, although good faith efforts have been made to ensure that the data displayed on this page is as accurate as possible. In certain cases listings are syndicated through another agency, management company, or through the MLS. A&S Realty, Inc is not responsible for the data that is displayed from a syndicate partner. Listings may no longer be available, pricing may be subject to change, and any photos or descriptions may be of a similar unit or from a previous year.