

































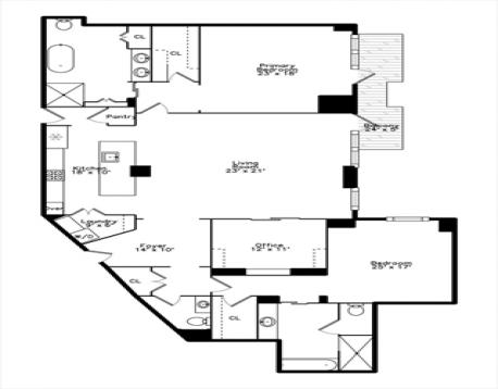
Rarely available Penthouse Level, South East facing . Bright & Sunny all day.! This refined home features Classic Custom Formal Entry to an Open floor plan for Living /Dining. Many updates including Kitchen w/ Quartz Counter tops and back splash, separate filtered hot water system , Two(2) Pantries One(1) with Washer and Dryer. Fireplaced( Bio Ethanol "Vent less" ) Living Area which leads out to Deck , Newly constructed Office/Den with plenty of built-ins and French Sliding Glass Pocket Doors .Totally Renovated Marble ,Porcelain Master Bathroom with Insulated soaking tub((for longer bath) .In-Ceiling Speakers (Surround Sound ) through out Living Room ,Kitchen , Master en -suite and Bath . Step out Balcony off Master Bedroom .Plenty of custom closets built with quality lumber and LED motion activated lighting. One(1) Garage Space Generous sized additional storage . On Boston’s Harbor, North End, Financial District, Faneuil Hall, TD North/South Station. A must to see
| MLS Listing ID: | 73473406 |
|---|---|
| Listing Price: | $2,950,000 |
| Listing Status: | Price Changed [?] |
| Neighborhood: | Waterfront |
| Property Type: | Condo |
| Style: | Mid-rise |
| Rooms: | 6 |
| Bedrooms: | 2 |
| Full Baths: | 2 |
| Half Baths: | 1 |
| Living Space: | 2162 sf. |
| Lot Size: | - |
| Parking: | Yes, Deeded |
| Taxes: | $24,276.54 |
| Tax Year: | 2026 |
| Association Fees: | $3852.40 |
Listing Current as of February 03, 2026 8:00pm
This listing brought to you by Sheb Shumar of Ardmore Realty Advisors.
The property listing data and information set forth herein were provided to MLS Property Information Network, Inc. from third party sources, including sellers, lessors and public records, and were compiled by MLS Property Information Network, Inc. The property listing data and information are for the personal, non-commercial use of consumers having a good faith interest in purchasing or leasing listed properties of the type displayed to them and may not be used for any purpose other than to identify prospective properties which such consumers may have a good faith interest in purchasing or leasing. MLS Property Information Network, Inc. and its subscribers disclaim any and all representations and warranties as to the accuracy of the property listing data and information set forth herein.
A&S Realty, Inc and their agents make no warranties or representations as to the accuracy of this data, although good faith efforts have been made to ensure that the data displayed on this page is as accurate as possible. In certain cases listings are syndicated through another agency, management company, or through the MLS. A&S Realty, Inc is not responsible for the data that is displayed from a syndicate partner. Listings may no longer be available, pricing may be subject to change, and any photos or descriptions may be of a similar unit or from a previous year.