



























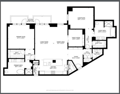
Beautifully renovated home at wonderful Battery Wharf. A formal entry foyer leads you into an expansive open living dinning with floor to ceiling glass opening to a wonderful terrace. The renovated cooks kitchen is custom with white lacquer cabinetry, stainless appliances, beverage cooler and 2 large pantries. Stone waterfall countertops are stunning ! Sliding doors open to a lovely den or home office with built in shelving. The sumptuous primary bedroom is a oasis with direct access to terrace, a large walk in closet and a Spa like en-suite bath with soaking tub,shower with body spray,twin sinks and plenty of storage. Then secondary bedroom has en suite bath with both soaking tub and oversized spa shower. Walk in closet. This home boasts almost 2200 square feet and has one valet garage parking, separate storage, concierge services and on site gym. EXHALE SPA, Hotel services and easy access to all highways. Walk into Bostons famed N End.
| MLS Listing ID: | 73504646 |
|---|---|
| Listing Price: | $2,450,000 |
| Listing Status: | Active [?] |
| Neighborhood: | Waterfront |
| Property Type: | Condo |
| Style: | Mid-rise |
| Rooms: | 4 |
| Bedrooms: | 2 |
| Full Baths: | 2 |
| Half Baths: | 1 |
| Living Space: | 2163 sf. |
| Lot Size: | - |
| Parking: | Yes |
| Taxes: | $28,036.00 |
| Tax Year: | 2026 |
| Association Fees: | $4097.90 |
Listing Current as of May 09, 2026 10:00pm
This listing brought to you by Elaine Dolley of Douglas Elliman Real Estate - Park Plaza.
The property listing data and information set forth herein were provided to MLS Property Information Network, Inc. from third party sources, including sellers, lessors and public records, and were compiled by MLS Property Information Network, Inc. The property listing data and information are for the personal, non-commercial use of consumers having a good faith interest in purchasing or leasing listed properties of the type displayed to them and may not be used for any purpose other than to identify prospective properties which such consumers may have a good faith interest in purchasing or leasing. MLS Property Information Network, Inc. and its subscribers disclaim any and all representations and warranties as to the accuracy of the property listing data and information set forth herein.
A&S Realty, Inc and their agents make no warranties or representations as to the accuracy of this data, although good faith efforts have been made to ensure that the data displayed on this page is as accurate as possible. In certain cases listings are syndicated through another agency, management company, or through the MLS. A&S Realty, Inc is not responsible for the data that is displayed from a syndicate partner. Listings may no longer be available, pricing may be subject to change, and any photos or descriptions may be of a similar unit or from a previous year.