

































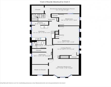
**Spacious Multi-Family Triplex in Jamaica Plain** Fully occupied Three family house with parking near Stony Brook Station is a rare opportunity in JP for investors & owner occupants! The property features three units in good rental condition with original molding details & wood floors. Each unit features 3 bedrooms, living room, 1 bathroom and an enclosed three-season porch. These spacious units are minutes from the Stony Brook Orange Line T-station & in the sought-after Brewery District of Jamaica Plain easily attracting tenants. The Brewery complex around the corner is packed with arts and culture, dining, & exercise venues, giving this property unique appeal. Don't miss this opportunity to invest in an easily commutable & high-reward area of Boston's Jamaica Plain. Projected market rents of $3,700-3,900/unit would make the ROI & CAP rate 7 to 7.5. Pictures are from when units were vacant. First viewings at open houses: Th 11am-12pm; Sat & Sun 12pm-1pm
Open House: March 5th 11:00-12:00pm
| MLS Listing ID: | 73481308 |
|---|---|
| Listing Price: | $1,400,000 |
| Listing Status: | New [?] |
| Neighborhood: | Jamaica Plain |
| Property Type: | Multi Family |
| Bedrooms: | 9 |
| Full Baths: | 3 |
| Living Space: | 3264 sf. |
| Lot Size: | 0.08 acres (3588 sf.) |
| Parking: | Yes |
| Taxes: | $17,160.00 |
| Tax Year: | 2026 |
Listing Current as of March 02, 2026 11:00am
This listing brought to you by Josh Brett of Compass.
The property listing data and information set forth herein were provided to MLS Property Information Network, Inc. from third party sources, including sellers, lessors and public records, and were compiled by MLS Property Information Network, Inc. The property listing data and information are for the personal, non-commercial use of consumers having a good faith interest in purchasing or leasing listed properties of the type displayed to them and may not be used for any purpose other than to identify prospective properties which such consumers may have a good faith interest in purchasing or leasing. MLS Property Information Network, Inc. and its subscribers disclaim any and all representations and warranties as to the accuracy of the property listing data and information set forth herein.
A&S Realty, Inc and their agents make no warranties or representations as to the accuracy of this data, although good faith efforts have been made to ensure that the data displayed on this page is as accurate as possible. In certain cases listings are syndicated through another agency, management company, or through the MLS. A&S Realty, Inc is not responsible for the data that is displayed from a syndicate partner. Listings may no longer be available, pricing may be subject to change, and any photos or descriptions may be of a similar unit or from a previous year.