


























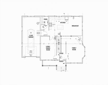
Ready to Go! Beautiful new construction at The Preserve at Cardinal Hill—one of Boston’s most exciting emerging neighborhoods. This spacious 4-bed, 2.5-bath home is designed for modern living with an open, airy layout that makes everyday life and entertaining feel effortless. Gather by the living room fireplace, host from the chef’s kitchen with ample prep space and stylish finishes, or enjoy morning coffee as natural light pours through oversized windows across the main level. Upstairs, the primary suite is a true retreat with its own fireplace, generous closet space, and a spa-inspired bath. Hardwood floors, bold tilework, and designer lighting add personality and polish throughout. A garage and freshly landscaped yard round out the lifestyle, with convenient access to parks, shops, and key city routes. Thoughtful design, neighborhood charm, and the excitement of a home that’s now ready to welcome you.
| MLS Listing ID: | 73472173 |
|---|---|
| Listing Price: | $1,650,000 |
| Listing Status: | Active [?] |
| Neighborhood: | West Roxbury |
| Property Type: | Single Family |
| Style: | Colonial |
| Rooms: | 9 |
| Bedrooms: | 4 |
| Full Baths: | 2 |
| Half Baths: | 1 |
| Living Space: | 2700 sf. |
| Lot Size: | 0.13 acres (5791 sf.) |
| Parking: | Yes, Off-street |
| Taxes: | $5,668.49 |
| Tax Year: | 2025 |
Listing Current as of April 07, 2026 12:00am
This listing brought to you by Rosemar Realty Group of Insight Realty Group, Inc..
The property listing data and information set forth herein were provided to MLS Property Information Network, Inc. from third party sources, including sellers, lessors and public records, and were compiled by MLS Property Information Network, Inc. The property listing data and information are for the personal, non-commercial use of consumers having a good faith interest in purchasing or leasing listed properties of the type displayed to them and may not be used for any purpose other than to identify prospective properties which such consumers may have a good faith interest in purchasing or leasing. MLS Property Information Network, Inc. and its subscribers disclaim any and all representations and warranties as to the accuracy of the property listing data and information set forth herein.
A&S Realty, Inc and their agents make no warranties or representations as to the accuracy of this data, although good faith efforts have been made to ensure that the data displayed on this page is as accurate as possible. In certain cases listings are syndicated through another agency, management company, or through the MLS. A&S Realty, Inc is not responsible for the data that is displayed from a syndicate partner. Listings may no longer be available, pricing may be subject to change, and any photos or descriptions may be of a similar unit or from a previous year.