






























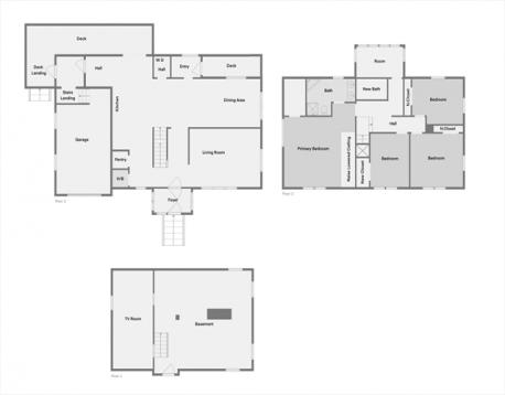
Striking 4-bedroom, 3.5-bath home offering approx. 3,200 sq ft of living space.Full gut renovation. The first floor features an open-concept layout w/ custom-cabinet kitchen, large dining area, and spacious living room with direct access to an expansive 180-degree rear deck overlooking the yard. The second floor offers four generously sized bedrooms, including a primary suite with tall ceilings, walk-in closet, and private bath with double vanity, tiled shower, and soaking tub. Second-floor laundry for added convenience. The fully finished basement provides flexible bonus space ideal for a gym, office, playroom, media room, guest area, or potential in-law setup. Corner lot with driveway parking and garage. Equipped with central heat and central AC, all new mechanicals, new roof, siding, windows, and upgraded electrical and plumbing. Conveniently located near shops, restaurants, parks, and everyday amenities with easy access to major commuter routes, bus lines, the commuter rail, and T.
| MLS Listing ID: | 73449491 |
|---|---|
| Listing Price: | $1,388,888 |
| Listing Status: | Active [?] |
| Neighborhood: | West Roxbury |
| Property Type: | Single Family |
| Style: | Colonial |
| Rooms: | 12 |
| Bedrooms: | 4 |
| Full Baths: | 3 |
| Half Baths: | 1 |
| Living Space: | 3200 sf. |
| Lot Size: | 0.11 acres (4764 sf.) |
| Parking: | Yes, Off-street |
| Taxes: | $8,048.00 |
| Tax Year: | 2025 |
Listing Current as of February 20, 2026 8:00pm
This listing brought to you by Laryssa Dias of Laryssa Dias.
The property listing data and information set forth herein were provided to MLS Property Information Network, Inc. from third party sources, including sellers, lessors and public records, and were compiled by MLS Property Information Network, Inc. The property listing data and information are for the personal, non-commercial use of consumers having a good faith interest in purchasing or leasing listed properties of the type displayed to them and may not be used for any purpose other than to identify prospective properties which such consumers may have a good faith interest in purchasing or leasing. MLS Property Information Network, Inc. and its subscribers disclaim any and all representations and warranties as to the accuracy of the property listing data and information set forth herein.
A&S Realty, Inc and their agents make no warranties or representations as to the accuracy of this data, although good faith efforts have been made to ensure that the data displayed on this page is as accurate as possible. In certain cases listings are syndicated through another agency, management company, or through the MLS. A&S Realty, Inc is not responsible for the data that is displayed from a syndicate partner. Listings may no longer be available, pricing may be subject to change, and any photos or descriptions may be of a similar unit or from a previous year.