











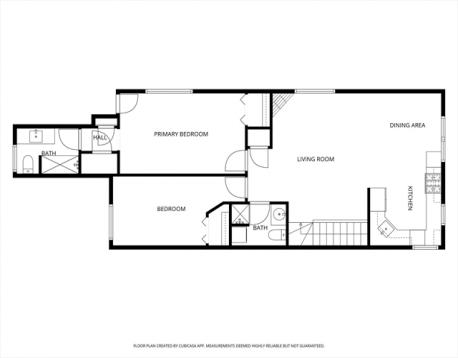
Top floor, open floor plan 2 bed 2 bathroom condo featuring AC, gas fireplace, in unit laundry featuring updated kitchen and baths. Private roof deck with city views. Spacious primary bedroom 16' by 10' with excellent closets and ensuite bathroom. Currently leased to 8/31/26 for $3,400. Nice opportunity for an investor. Located just off East Broadway near I street. Playwright, American Provisions, Stop & Shop all nearby.
| MLS Listing ID: | 73448480 |
|---|---|
| Listing Price: | $800,000 |
| Listing Status: | Active [?] |
| Neighborhood: | South Boston |
| Property Type: | Condo |
| Style: | 2/3 Family |
| Rooms: | 5 |
| Bedrooms: | 2 |
| Full Baths: | 2 |
| Living Space: | 1026 sf. |
| Lot Size: | 0.02 acres (1026 sf.) |
| Parking: | Yes, On Street Permit |
| Taxes: | $8,436.00 |
| Tax Year: | 2025 |
| Association Fees: | $250.00 |
Listing Current as of November 10, 2025 11:00am
This listing brought to you by Stephen McCarthy of William Raveis R.E. & Home Services.
The property listing data and information set forth herein were provided to MLS Property Information Network, Inc. from third party sources, including sellers, lessors and public records, and were compiled by MLS Property Information Network, Inc. The property listing data and information are for the personal, non-commercial use of consumers having a good faith interest in purchasing or leasing listed properties of the type displayed to them and may not be used for any purpose other than to identify prospective properties which such consumers may have a good faith interest in purchasing or leasing. MLS Property Information Network, Inc. and its subscribers disclaim any and all representations and warranties as to the accuracy of the property listing data and information set forth herein.
A&S Realty, Inc and their agents make no warranties or representations as to the accuracy of this data, although good faith efforts have been made to ensure that the data displayed on this page is as accurate as possible. In certain cases listings are syndicated through another agency, management company, or through the MLS. A&S Realty, Inc is not responsible for the data that is displayed from a syndicate partner. Listings may no longer be available, pricing may be subject to change, and any photos or descriptions may be of a similar unit or from a previous year.