Inquiry Submitted


Issue Submitting Inquiry. Please Call Us (617) 267-3485

Inquire about this listing:
For a faster response you can also call us at 617-267-3485

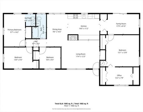
Sprawling 4 bedroom ranch set on a beautiful lot in the desirable neighborhood of Raymond Farms. Enjoy the brand new kitchen featuring white cabinetry and Quartz Countertops. The sundrenched living room has a wood burning fireplace and is open to the dining area. There is a family room off of the kitchen, a 4th bedroom, and an office. Many updates to this home include replacement windows, a new hot water heater, fresh interior and exterior paint, bathroom vanity, etc. Quiet location in a private setting. Showings start on Thursday (10/16) at an open house from 4:00 - 5:30 pm, followed by Open Houses on Saturday (10/18) and Sunday (10/19) from 11:00 am - 1:00 pm.

  Open House: October 16th 4:00-5:30pm

MLS Listing ID: 73443117
Listing Price: $699,900
Listing Status: New [?]
Neighborhood: North Beverly
Property Type: Single Family
Style: Ranch
Rooms: 8
Bedrooms: 4
Full Baths: 1
Half Baths: 1
Living Space: 1682 sf.
Lot Size: 0.25 acres (10799 sf.)
Parking: Yes, Off-street
Taxes: $6,147.00
Tax Year: 2025

Listing Current as of October 14, 2025 3:00pm

This listing brought to you by Deborah Terlik of Keller Williams Realty Evolution.

The property listing data and information set forth herein were provided to MLS Property Information Network, Inc. from third party sources, including sellers, lessors and public records, and were compiled by MLS Property Information Network, Inc. The property listing data and information are for the personal, non-commercial use of consumers having a good faith interest in purchasing or leasing listed properties of the type displayed to them and may not be used for any purpose other than to identify prospective properties which such consumers may have a good faith interest in purchasing or leasing. MLS Property Information Network, Inc. and its subscribers disclaim any and all representations and warranties as to the accuracy of the property listing data and information set forth herein.

A&S Realty, Inc and their agents make no warranties or representations as to the accuracy of this data, although good faith efforts have been made to ensure that the data displayed on this page is as accurate as possible. In certain cases listings are syndicated through another agency, management company, or through the MLS. A&S Realty, Inc is not responsible for the data that is displayed from a syndicate partner. Listings may no longer be available, pricing may be subject to change, and any photos or descriptions may be of a similar unit or from a previous year.