


































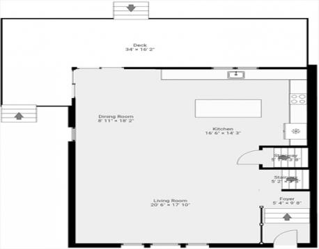
An inviting layout unfolds in this gorgeously presented tri-level home in highly desired neighborhood.Extremely generous high end open concept kitchen adjacent to oversized living room with vaulted ceiling.Kitchen has an abundance of shaker cabinets,stainless appliances,pendant & recessed lighting and granite countertops incl.large kitchen island. Warm hardwood is featured throughout main level. Hardwood continues in upper level w/3 BR's and nicely remodeled bath with luxurious oversized shower.The lower level currently functions as stunning primary suite with custom built walk-in closet,nicely appointed full bath and laundry room, but could also offer home office option (exterior access), and FR...suiting many needs. This move-in ready home flows easily with minimal stairs. Large fenced in yard with oversized deck is great for entertaining during spring/summer gatherings. Fully conforming lot easily offers room for additions/expansion.Significant space and opportunity inside and out.
Open House: March 8th 11:00-2:00pm
| MLS Listing ID: | 73483572 |
|---|---|
| Listing Price: | $899,000 |
| Listing Status: | New [?] |
| Neighborhood: | Centerville (bvly) |
| Property Type: | Single Family |
| Style: | Multi-level |
| Rooms: | 8 |
| Bedrooms: | 4 |
| Full Baths: | 2 |
| Living Space: | 2268 sf. |
| Lot Size: | 0.35 acres (15198 sf.) |
| Parking: | Yes, Off-Street, Paved Driveway, Off-Street, Paved Driveway |
| Taxes: | $8,613.41 |
| Tax Year: | 2026 |
Listing Current as of March 06, 2026 8:00pm
This listing brought to you by Shannon Barror of Keller Williams Realty Evolution.
The property listing data and information set forth herein were provided to MLS Property Information Network, Inc. from third party sources, including sellers, lessors and public records, and were compiled by MLS Property Information Network, Inc. The property listing data and information are for the personal, non-commercial use of consumers having a good faith interest in purchasing or leasing listed properties of the type displayed to them and may not be used for any purpose other than to identify prospective properties which such consumers may have a good faith interest in purchasing or leasing. MLS Property Information Network, Inc. and its subscribers disclaim any and all representations and warranties as to the accuracy of the property listing data and information set forth herein.
A&S Realty, Inc and their agents make no warranties or representations as to the accuracy of this data, although good faith efforts have been made to ensure that the data displayed on this page is as accurate as possible. In certain cases listings are syndicated through another agency, management company, or through the MLS. A&S Realty, Inc is not responsible for the data that is displayed from a syndicate partner. Listings may no longer be available, pricing may be subject to change, and any photos or descriptions may be of a similar unit or from a previous year.