















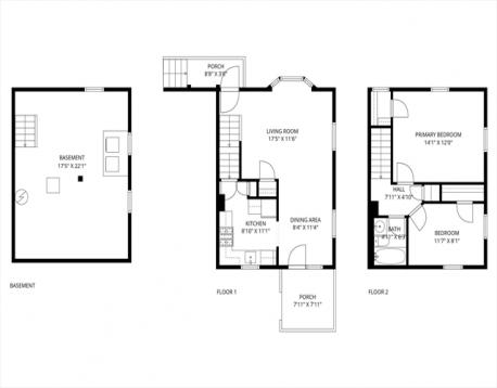
Beautiful Arlington Heights townhouse offering a bright, functional layout and standout convenience. The well-appointed kitchen features granite counters, stainless steel appliances, gas cooking, and generous cabinet space. A large bay window fills the open dining/living area with natural light, while French doors lead to a private patio and backyard suited for grilling or unwinding outdoors. Upstairs, the king-sized primary bedroom delivers ample room, and the second bedroom offers flexibility as a guest room, home office, or both. Two dedicated parking spaces add everyday ease, as well as a basement with ample storage and laundry hookups. Set in a pet-friendly, professionally managed complex near the Minuteman bike path, bus routes, highways, Arlington Reservoir, Hill’s Hill, Whipple Hill trails, and local shops and restaurants, this move-in-ready home delivers comfort and location in equal measure.
Open House: November 15th 1:00-2:30pm
| MLS Listing ID: | 73454981 |
|---|---|
| Listing Price: | $685,000 |
| Listing Status: | New [?] |
| Property Type: | Single Family |
| Style: | Other (see Remarks) |
| Rooms: | 5 |
| Bedrooms: | 2 |
| Full Baths: | 1 |
| Living Space: | 1195 sf. |
| Lot Size: | 0.03 acres (1195 sf.) |
| Parking: | - |
| Taxes: | $5,106.00 |
| Tax Year: | 2024 |
Listing Current as of November 14, 2025 2:00pm
This listing brought to you by Aranson Maguire Group of Compass.
The property listing data and information set forth herein were provided to MLS Property Information Network, Inc. from third party sources, including sellers, lessors and public records, and were compiled by MLS Property Information Network, Inc. The property listing data and information are for the personal, non-commercial use of consumers having a good faith interest in purchasing or leasing listed properties of the type displayed to them and may not be used for any purpose other than to identify prospective properties which such consumers may have a good faith interest in purchasing or leasing. MLS Property Information Network, Inc. and its subscribers disclaim any and all representations and warranties as to the accuracy of the property listing data and information set forth herein.
A&S Realty, Inc and their agents make no warranties or representations as to the accuracy of this data, although good faith efforts have been made to ensure that the data displayed on this page is as accurate as possible. In certain cases listings are syndicated through another agency, management company, or through the MLS. A&S Realty, Inc is not responsible for the data that is displayed from a syndicate partner. Listings may no longer be available, pricing may be subject to change, and any photos or descriptions may be of a similar unit or from a previous year.