





























Inquiry Submitted
Issue Submitting Inquiry. Please Call Us (617) 267-3485
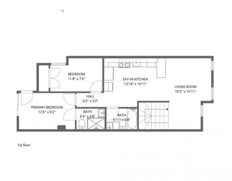
Available 4/1! Experience elevated penthouse living in the heart of Charlestown, just steps to the Monument and a short stroll to neighborhood restaurants, shops, bus lines, and public transportation. This stunning new construction 2 bed, 2 bath home features a massive private back deckperfect for entertaining or unwinding outdoors. The open-concept layout offers a spacious, front-facing living room with oversized windows, exposed brick, and a decorative fireplace, creating warmth and character. The luxury kitchen is designed to impress with stainless steel appliances, marble countertops, custom cabinetry, and a breakfast bar overlooking the living space. Both bedrooms are privately positioned in the rear with generous closets. Additional highlights include central air, in-unit washer/dryer, recessed lighting, marble-tiled baths, and abundant storage. A perfect blend of modern luxury and classic charm near Monument Square!
| Listing ID: | 73479551 |
|---|---|
| Rent: | $3,650/mo. |
| Available: | April 1, 2026 |
| Status: | Active |
| Location: | Charlestown |
| Bedrooms: | 2 |
| Bathrooms: | 2 |
| Living Area: | 810 sf. |
| Parking: | Street Parking, Permit Required |
| Pets: | Yes w/ Restrictions |
| Included Utilities: | - |
Listing Current as of February 23, 2026 11:00pm
This listing brought to you by Jacqueline Keung of Keller Williams Realty.
The property listing data and information set forth herein were provided to MLS Property Information Network, Inc. from third party sources, including sellers, lessors and public records, and were compiled by MLS Property Information Network, Inc. The property listing data and information are for the personal, non-commercial use of consumers having a good faith interest in purchasing or leasing listed properties of the type displayed to them and may not be used for any purpose other than to identify prospective properties which such consumers may have a good faith interest in purchasing or leasing. MLS Property Information Network, Inc. and its subscribers disclaim any and all representations and warranties as to the accuracy of the property listing data and information set forth herein.
A&S Realty, Inc and their agents make no warranties or representations as to the accuracy of this data, although good faith efforts have been made to ensure that the data displayed on this page is as accurate as possible. In certain cases listings are syndicated through another agency, management company, or through the MLS. A&S Realty, Inc is not responsible for the data that is displayed from a syndicate partner. Listings may no longer be available, pricing may be subject to change, and any photos or descriptions may be of a similar unit or from a previous year.