





Inquiry Submitted
Issue Submitting Inquiry. Please Call Us (617) 267-3485
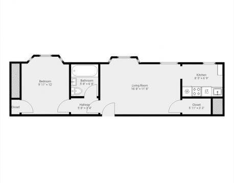
Well-laid-out one-bedroom condo located on the top floor (7th floor) of a historic, professionally managed building in the heart of Bostons Back Bay. Quietly rear-facing, the home offers a peaceful retreat. The bedroom features a classic bay window, ample storage, and comfortably accommodates a queen-sized bed and dresser. A spacious living room, also highlighted by a bay window and generous closet space, provides an inviting setting for both relaxing and entertaining. A functional galley kitchen is thoughtfully tucked off to the side, maximizing the homes efficient layout. Building amenities include: heat and hot water, two elevators, an on-site superintendent, and convenient common laundry facilities. This condo is an ideal Back Bay location being Pru and park-adjacent with easy access to shopping, dining, notable neighborhoods, Northeastern University, WIT, major hospitals, MBTA and highway access (90 and 93).
| Listing ID: | 73496922 |
|---|---|
| Rent: | $2,750/mo. |
| Available: | July 1, 2026 |
| Status: | Active |
| Location: | Back Bay |
| Bedrooms: | 1 |
| Bathrooms: | 1 |
| Living Area: | 440 sf. |
| Parking: | Street Parking, Permit Required |
| Pets: | Other (See Remarks) |
| Included Utilities: | Heat, Hot Water |
Listing Current as of April 07, 2026 2:00pm
This listing brought to you by Samantha Jason of Donnelly + Co..
The property listing data and information set forth herein were provided to MLS Property Information Network, Inc. from third party sources, including sellers, lessors and public records, and were compiled by MLS Property Information Network, Inc. The property listing data and information are for the personal, non-commercial use of consumers having a good faith interest in purchasing or leasing listed properties of the type displayed to them and may not be used for any purpose other than to identify prospective properties which such consumers may have a good faith interest in purchasing or leasing. MLS Property Information Network, Inc. and its subscribers disclaim any and all representations and warranties as to the accuracy of the property listing data and information set forth herein.
A&S Realty, Inc and their agents make no warranties or representations as to the accuracy of this data, although good faith efforts have been made to ensure that the data displayed on this page is as accurate as possible. In certain cases listings are syndicated through another agency, management company, or through the MLS. A&S Realty, Inc is not responsible for the data that is displayed from a syndicate partner. Listings may no longer be available, pricing may be subject to change, and any photos or descriptions may be of a similar unit or from a previous year.