






















Inquiry Submitted
Issue Submitting Inquiry. Please Call Us (617) 267-3485
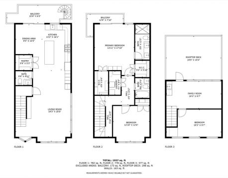
May 1 move in with some flexibility | Outgrown your apartment but not ready to commit to the burbs?! Welcome to 530 E 3rd - this stunning, custom-built penthouse triplex truly lives likes a private single family home. Rentals of this quality do not come around often! The main living space is sprawling and includes a large storage pantry, cute dining nook, custom built-ins for entertainment, and south-facing windows that let in light all day. Your first of three outdoor spaces is on this level. The middle floor is home to a true primary suite with two walk in closets, double vanity bathroom, and balcony. Laundry, second bed and guest bath share this floor. Up top is your wet bar, dedicated office space, and true third bedroom, along with a generous roof deck ready for summer dinner parties! 2026 is the year your home matches your lifestyle at 530 E 3rd!
| Listing ID: | 73465869 |
|---|---|
| Rent: | $6,900/mo. |
| Available: | Now |
| Status: | Active |
| Location: | South Boston |
| Bedrooms: | 3 |
| Bathrooms: | 2.5 |
| Living Area: | 1937 sf. |
| Parking: | Street Parking, Permit Required |
| Pets: | No |
| Included Utilities: | - |
Listing Current as of January 08, 2026 2:00pm
This listing brought to you by Amanda Maselek of Donnelly + Co..
The property listing data and information set forth herein were provided to MLS Property Information Network, Inc. from third party sources, including sellers, lessors and public records, and were compiled by MLS Property Information Network, Inc. The property listing data and information are for the personal, non-commercial use of consumers having a good faith interest in purchasing or leasing listed properties of the type displayed to them and may not be used for any purpose other than to identify prospective properties which such consumers may have a good faith interest in purchasing or leasing. MLS Property Information Network, Inc. and its subscribers disclaim any and all representations and warranties as to the accuracy of the property listing data and information set forth herein.
A&S Realty, Inc and their agents make no warranties or representations as to the accuracy of this data, although good faith efforts have been made to ensure that the data displayed on this page is as accurate as possible. In certain cases listings are syndicated through another agency, management company, or through the MLS. A&S Realty, Inc is not responsible for the data that is displayed from a syndicate partner. Listings may no longer be available, pricing may be subject to change, and any photos or descriptions may be of a similar unit or from a previous year.