










Inquiry Submitted
Issue Submitting Inquiry. Please Call Us (617) 267-3485
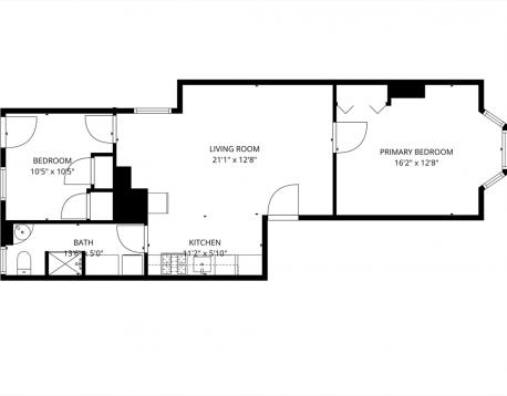
Welcome to this well-maintained and charming home. Thoughtfully designed with a functional layout ideal for roommates, professionals, or anyone looking for extra space to work from home. This home features beautiful hardwood floors throughout, exposed brick walls, large windows to let in tons of light, and a bright white kitchen that gives the space a clean, modern feel. Enjoy the convenience of in-unit laundry along with access to a common roof deck, perfect for relaxing, entertaining, or taking in the city views. This unit also offers rare flexibility (inquire with listing agent), as it can be rented furnished or unfurnished and is available for both mid-term and long-term leases, making it a great option for a variety of living situations. Located in one of South Bostons most desirable neighborhoods, youll be just moments from restaurants, coffee shops, public transportation, and everything the area has to offer.
| Listing ID: | 73486538 |
|---|---|
| Rent: | $3,700/mo. |
| Available: | Now |
| Status: | Active |
| Location: | South Boston |
| Bedrooms: | 2 |
| Bathrooms: | 1 |
| Living Area: | 704 sf. |
| Parking: | Street Parking, Permit Required |
| Pets: | Pets Negotiable |
| Included Utilities: | - |
Listing Current as of March 14, 2026 12:00am
This listing brought to you by The Broadway Group of Engel & Volkers Boston.
The property listing data and information set forth herein were provided to MLS Property Information Network, Inc. from third party sources, including sellers, lessors and public records, and were compiled by MLS Property Information Network, Inc. The property listing data and information are for the personal, non-commercial use of consumers having a good faith interest in purchasing or leasing listed properties of the type displayed to them and may not be used for any purpose other than to identify prospective properties which such consumers may have a good faith interest in purchasing or leasing. MLS Property Information Network, Inc. and its subscribers disclaim any and all representations and warranties as to the accuracy of the property listing data and information set forth herein.
A&S Realty, Inc and their agents make no warranties or representations as to the accuracy of this data, although good faith efforts have been made to ensure that the data displayed on this page is as accurate as possible. In certain cases listings are syndicated through another agency, management company, or through the MLS. A&S Realty, Inc is not responsible for the data that is displayed from a syndicate partner. Listings may no longer be available, pricing may be subject to change, and any photos or descriptions may be of a similar unit or from a previous year.