

















Inquiry Submitted
Issue Submitting Inquiry. Please Call Us (617) 267-3485
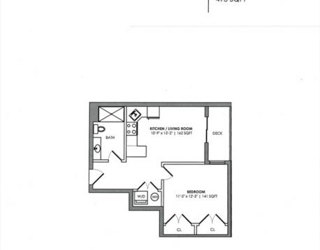
Clean, contemporary Mission Hill residence offering a highly convenient lifestyle near the Longwood Medical Area. Positioned with easy access to both the Orange and Green Line, this home places major hospitals, universities, and everyday amenities within close reach. The interior features a bright, open living space anchored by a modern kitchen with quartz countertops and stainless steel appliances. Oversized windows bring in natural light, complementing the homes straightforward, functional layout. Finishes include wood flooring throughout, recessed lighting, central heating and cooling, in-unit laundry, and updated an bathroom with glass-enclosed showers. Building amenities include a shared rooftop deck with grill areas and city views, along with a 24-hour fitness center. Professionally managed and recently built, this is a well-maintained property in one of Bostons most accessible and active neighborhoods.
| Listing ID: | 73499748 |
|---|---|
| Rent: | $3,195/mo. |
| Available: | September 1, 2026 |
| Status: | Active |
| Location: | Mission Hill |
| Bedrooms: | 1 |
| Bathrooms: | 1 |
| Living Area: | 495 sf. |
| Parking: | Street Parking, Permit Required |
| Pets: | No |
| Included Utilities: | Hot Water |
Listing Current as of April 10, 2026 2:00pm
This listing brought to you by Eric Walbridge of Gibson Sotheby's International Realty.
The property listing data and information set forth herein were provided to MLS Property Information Network, Inc. from third party sources, including sellers, lessors and public records, and were compiled by MLS Property Information Network, Inc. The property listing data and information are for the personal, non-commercial use of consumers having a good faith interest in purchasing or leasing listed properties of the type displayed to them and may not be used for any purpose other than to identify prospective properties which such consumers may have a good faith interest in purchasing or leasing. MLS Property Information Network, Inc. and its subscribers disclaim any and all representations and warranties as to the accuracy of the property listing data and information set forth herein.
A&S Realty, Inc and their agents make no warranties or representations as to the accuracy of this data, although good faith efforts have been made to ensure that the data displayed on this page is as accurate as possible. In certain cases listings are syndicated through another agency, management company, or through the MLS. A&S Realty, Inc is not responsible for the data that is displayed from a syndicate partner. Listings may no longer be available, pricing may be subject to change, and any photos or descriptions may be of a similar unit or from a previous year.