


Inquiry Submitted
Issue Submitting Inquiry. Please Call Us (617) 267-3485
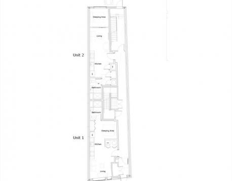
Be the first to live in this spectacular new construction brownstone, offering a luxury feel in the heart of Mission Hill. Just steps away from many foodie spots, convenience stores, and the MBTA Orange Line. This particular unit is considered the Penthouse offering private rooftop access, brand new kitchen with stainless steel appliances, in-unit washer and dryer, and hardwood floors. Security deposit is required and can only be negotiated on a case-by-case basis. Dogs are allowed on a case-by case basis for an additional $200/month and cats are allowed for an additional $150/month. Tenants will be responsible for all utilities including but not limited to water and sewer payments. Still months away from completion, please refer to progress photos and floor plans.
| Listing ID: | 73487730 |
|---|---|
| Rent: | $6,200/mo. |
| Available: | July 1, 2026 |
| Status: | Active |
| Location: | Mission Hill |
| Bedrooms: | 3 |
| Bathrooms: | 2 |
| Living Area: | 1500 sf. |
| Parking: | Street Parking, Permit Required |
| Pets: | Pets Negotiable |
| Included Utilities: | - |
Listing Current as of March 17, 2026 4:00pm
This listing brought to you by CRM Rentals Team of City Realty Group.
The property listing data and information set forth herein were provided to MLS Property Information Network, Inc. from third party sources, including sellers, lessors and public records, and were compiled by MLS Property Information Network, Inc. The property listing data and information are for the personal, non-commercial use of consumers having a good faith interest in purchasing or leasing listed properties of the type displayed to them and may not be used for any purpose other than to identify prospective properties which such consumers may have a good faith interest in purchasing or leasing. MLS Property Information Network, Inc. and its subscribers disclaim any and all representations and warranties as to the accuracy of the property listing data and information set forth herein.
A&S Realty, Inc and their agents make no warranties or representations as to the accuracy of this data, although good faith efforts have been made to ensure that the data displayed on this page is as accurate as possible. In certain cases listings are syndicated through another agency, management company, or through the MLS. A&S Realty, Inc is not responsible for the data that is displayed from a syndicate partner. Listings may no longer be available, pricing may be subject to change, and any photos or descriptions may be of a similar unit or from a previous year.